logo teste.png

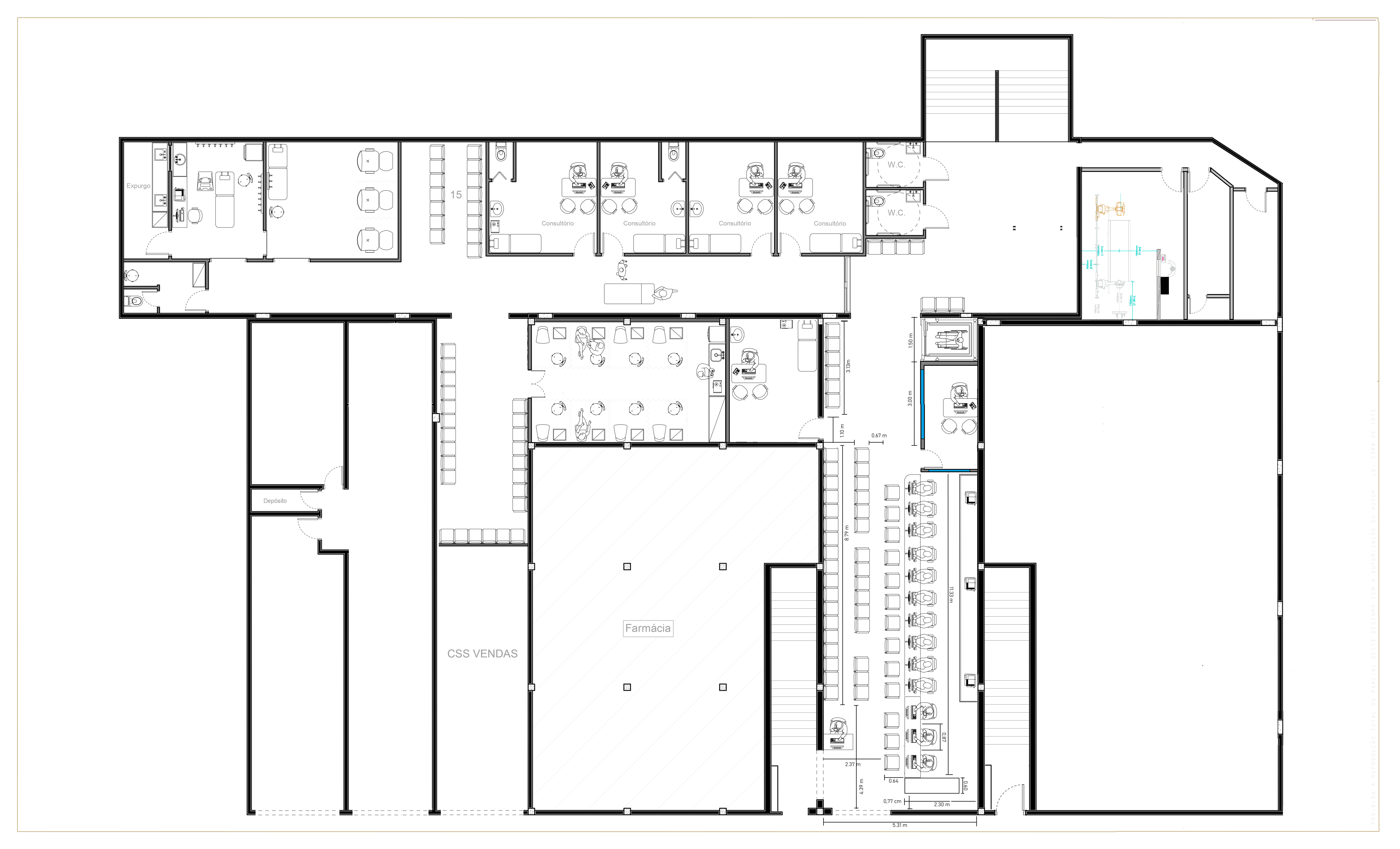
O que é um Projeto Executivo?

 

O projeto executivo a é a etapa final do desenvolvimento de um projeto de arquitetura, responsável por detalhar todas as informações necessárias para a execução da obra. Ele traduz a concepção do projeto em documentos técnicos precisos, permitindo que engenheiros, mestres de obras e empreiteiros possam realizar a construção com fidelidade ao que foi planejado.

 

 

Conteúdo do Projeto Executivo

Esse conjunto de documentos inclui:

  • Plantas baixas detalhadas
    Com todas as cotas, níveis, espessuras de paredes, posições de portas, janelas e outros elementos construtivos.

  • Cortes e fachadas
    Mostram a relação entre os ambientes, alturas, volumetria e características estéticas da edificação.

  • Detalhamentos construtivos
    Ampliações em escala maior de elementos específicos, como escadas, bancadas, esquadrias, revestimentos e acabamentos.

  • Layout de mobiliário e equipamentos
    Indicação de móveis fixos, soltos e equipamentos planejados, garantindo funcionalidade e ergonomia.

  • Projeto de paginação de pisos e revestimentos
    Mostra como os materiais serão aplicados, respeitando padrões e direções de assentamento.

predio.png

Memorial descritivo
Documento que especifica materiais, acabamentos, cores e diretrizes para execução.

 

Compatibilização com outras disciplinas
Integração com projetos complementares: estrutural, elétrico, hidráulico, climatização, entre outros.

 

Importância do Projeto Executivo
O projeto executivo é essencial para:
 
- Evitar erros na obra 
- Controlar prazos e custos 
- Garantir qualidade e conformidade com normas técnicas 
- Facilitar aprovações legais e orçamentações

 

 

001_CLINICA SOLER.png